Descrizione

UV1094 = In zona altamente strategica e fortemente ricercata, proponiamo in vendita ufficio di 86 mq situato in una palazzina direzionale edificata nei primi anni 2000, dotata di ampio parcheggio.

L'immobile si trova in posizione comodissima a tutti i servizi principali, a pochi minuti dalla città, dalla stazione AV Mediopadana e dal casello autostradale, ideale per chi necessita di una sede facilmente raggiungibile e ben collegata.

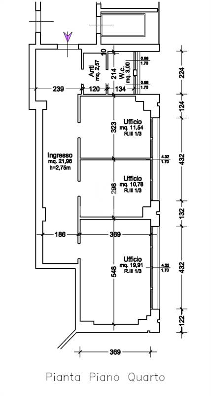
Distribuzione interna:

- Ingresso con sala d’attesa

- Tre stanze operative

- Antibagno e bagno

- Posto auto coperto al piano interrato

L’ufficio presenta un ottimo stato manutentivo, è già cablato, con impianti funzionanti e certificati, pronto per essere utilizzato senza necessità di interventi.

Altezza interna: 2,75 m

Soluzione perfetta per studi professionali, consulenti o società che cercano un ambiente curato, funzionale e ben posizionato.

Per maggiori informazioni o per fissare una visita, contattaci senza impegno.


Caratteristiche principali

Anno costruzione
2000
Piano
4
Stato Immobile
Ottimo
Grado
Medio
Posizione
Centro
Panorama
Vista Aperta
Lati Liberi
1
Arredi
Non Arredato
Riscaldamento
Tele Riscaldamento
Tipo Riscaldam.
Ventilconvettore
Tipo Impianto
Aria
Accesso Disabili
Nessuna Barriera
Accessori: Aria Condizionata, Ascensore, Doppi Vetri, Filo Diffusione, Porta Blindata, Rete Dati, Video Citofono

Mappa

Via Ruini 74, Reggio nell'Emilia (RE)

Richiedi informazioni

Invia
Cookie preference
Valuta la tua casa